高原記念館(杉本キャンパス)
設立の経緯
高原記念館は、大阪市立大学創立125周年に際し、商学部の卒業生である高原慶一朗氏より、建物の現物寄附を受けたものです。
当時、大学の法人化の目玉組織であった都市研究プラザや、同窓会組織の活動拠点、教育研究活動や交流の場としての学友ホールも設置されました。
「ここしかない」「今しかない」「これしかない」を基本コンセプトに作られたユニークで斬新な建物です。
設計者:工学研究科 横山 俊祐教授(当時)
「本館(1号館)を主軸として対称に位置する旧図書館棟(学生サポートセンター棟)に建物の長さや高さを揃えて、キャンパスの中心を形成しています。緑豊かな敷地の特性を活かすよう、ガラス面が樹木の並びをなぞりながら樹間に入り込むように折れ曲がり連なることで、緑と建物とを一体化すること、内外空間に変化に富んだ場を生み出し、両者が多様な活動の場になることを目指しています。
また、外観を特徴づける再生ガラスと透明ガラスの組み合わせは、活動を外部に向けて表出し、知的な賑わいがキャンパスに拡がっていくことを意図しています。
と同時に、内部は、活動の場を固定・分離する間仕切壁を極力なくしてオープンプランとすることで、多様な活動形態に応じて自由に場を作り替えることや、活動が相互に連続・重合することを促進しています。
権威や重厚さ、閉鎖性に対峙し、自由・軽快、柔軟性・関係性に満ちた空間と活動づくりによって新たな知的プラットフォームとなることを試みています」
利用可能施設の概要
高原記念館のうち、1階の学友ホール、2階の特別会議室を有料施設として貸し出しています。
学術研究、教育及び文化活動や教職員の福利厚生、同窓会員の親睦の目的で、本学の教職員や学生、同窓会員等が利用できます。
利用に際しては、予約が必要です。詳細については「利用案内」をご覧ください。
【関連書類】
【収容人数の目安】
■学友ホール
| 人数 | 立席で ~約150名 (特殊な形状のため配置により収容人数が変わります) |
| 面積 | 285㎡ |
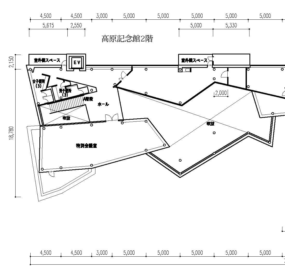
■2F特別会議室
| 人数 | 30名 |
| 面積 | 110㎡ |
平面図
■平面図をクリックすると大きな図が表示されます。
学友ホール
学友ホール(奥から)
学友ホール(手前から)
| 備品 | 会議テーブル(W1500×D450mm) | 27 |
| スタッキングチェア | 180 | |
| 丸テーブル(直径900mm) | 2 | |
| 演台 | 1 | |
| 簡易ステージ | 1 | |
| マイク・スピーカーセット | 1 | |
| マイクスタンド | ||
| 80インチモニター | 1 | |
| ホワイトボード | ||
| ポスターボード | 15 |
特別会議室

| 備品 | 会議テーブル(W1800×D600mm) | 12 |
| キャスター付き椅子 | 30 | |
| ホワイトボード | 1 | |
| 65インチモニター | 1 |
利用について
施設管理課
TEL:06-6605-2041
メール:gr-shise-s.yoyaku[at]omu.ac.jp [at]を@に変更してください。

